Constructions modulaires 2024
CONSTRUCTIONS MODULAIRES - COLLECTION 2024
Des modèles aux couleurs de vos envies
Nos constructions modulaires, en plus d'être élégantes, sont très polyvalentes et peuvent répondre à de nombreux besoins: de la salle de séjour spacieuse, vous permettant d'accueillir confortablement des invités dans votre jardin à la salle de fitness ou de danse, créez le lieu parfait en fonction de vos préférences. Si vous cherchez un espace utilisable toute l'année, nos studios de jardin habitables isolés seront une option intéressante à envisager.
UN STUDIO DE JARDIN UNIQUE SELON VOS USAGES
D’une fabrication artisanale mais de pointe, nos studios de jardin offrent libre choix quant à leur utilisation : chambre pour accueillir famille et amis, bureau de jardin pour le télétravail ou encore un projet dédié à une location saisonnière ou longue durée. Avec leur design contemporain et d’une surface de 15 à 64 m2, ils s’adaptent à vos besoins :
- Réalisez un investissement locatif
Chambres d'hôtes ou studios étudiants, une stratégie gagnante pour des revenus passifs. - Agrandissez votre maison
Une extension qui réinvente votre espace de vie, conçue pour s'adapter à vos besoins. - Accueillez famille et amis
L'endroit idéal pour des retrouvailles, sans renoncer à votre intimité. - Aménagez un espace de travail
Un bureau proche de chez vous pour tous vos projets. Du cabinet de praticien au salon de coiffure. - Créez un espace de loisirs
Une pièce sur mesure pour vivre pleinement vos loisirs. Sport, musique, jeux, ou art, créez l'espace de vos rêves. - Hébergez un sénior
Créez un espace de vie indépendant et sécurisé dans votre jardin, parfaitement adapté aux besoins des séniors.
Module STANY
PACK 1 : 4.267,83 € HTVA* - PACK 2 : 22.236,31 € HTVA* - PACK 3 : 7.241,71 € HTVA*
Déplaçable - 5 m x 3 m < Scroller > ci-dessus
Module STANY accolé
Espace bureau < Scroller > ci-dessus
Module commercial accolé " ILLUSTRA'TIF "
Exemple : Salon de coiffure < Scroller > ci-dessus
Moins cher à construire qu'à louer !!!!!
Kiosque commercial " GAUF' FRED " déplaçable
Exemple : Commerce de gaufres - 9m2
Module d'extension CLARA A accoler - 28 m2 < Scroller > ci-dessus
6.600 € apport personnel et 408 €/mois pendant 15 ans*
* Hors transformation de l'existant et raccordements - TVA à 6% comprise (si accolé à un bâtiment de plus de 10 ans)
* Architecte, Coordinateur-sécurité, PEB, essais de sol, Ingénieur COMPRIS
Module d'extension LOUISE A accoler - 32 m2 < Scroller > ci-dessus
5.500 € apport personnel et 339 €/mois pendant 15 ans*
* Hors transformation de l'existant et raccordements - TVA à 6% comprise (si accolé à un bâtiment de plus de 10 ans)
* Architecte, Coordinateur-sécurité, PEB, essais de sol, Ingénieur COMPRIS
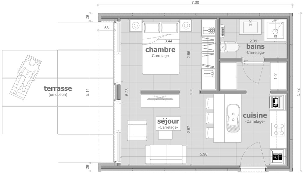
studio MAËLLE Studio autonome - 26 m2 < Scroller > ci-dessus
7.500 € apport personnel et 551 €/mois pendant 15 ans*
* Hors raccordements - TVA à 21% comprise
* Architecte, Coordinateur-sécurité, PEB, essais de sol, Ingénieur COMPRIS
Module KURT - Extension pour SENIOR Studio à accoler - 28 m2 < Scroller > ci-dessus
7.000 € apport personnel et 435 €/mois pendant 15 ans*
* Hors raccordements - TVA à 6% comprise (si accolé à un bâtiment de plus de 10 ans)
* Architecte, Coordinateur-sécurité, PEB, essais de sol, Ingénieur COMPRIS
Module SACHA - Extension pour SENIOR Studio à accoler - 31 m2 < Scroller > ci-dessus
7.500 € apport personnel et 475 €/mois pendant 15 ans*
* Hors raccordements - TVA à 6% comprise (si accolé à un bâtiment de plus de 10 ans)
* Architecte, Coordinateur-sécurité, PEB, essais de sol, Ingénieur COMPRIS
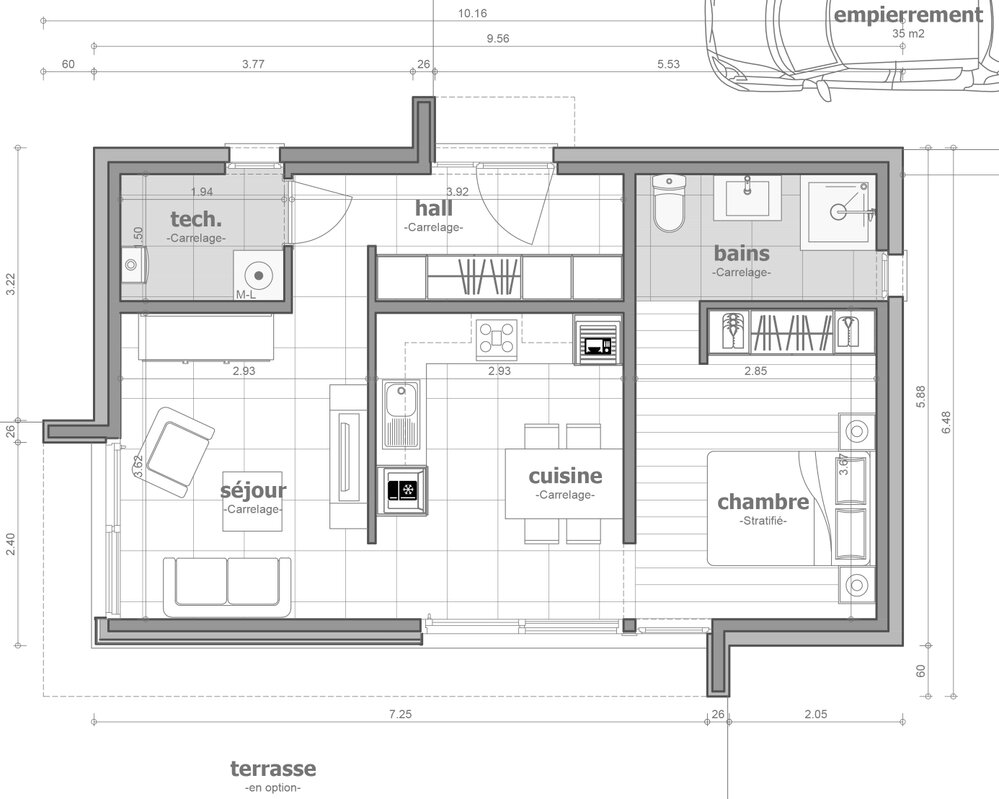
Module EMMA Studio autonome - 40 m2 < Scroller > ci-dessus
10.000 € apport personnel et 633 €/mois pendant 15 ans*
* Hors raccordements - TVA à 21% comprise
* Architecte, Coordinateur-sécurité, PEB, essais de sol, Ingénieur COMPRIS
Module SOPHIE
Bungalow autonome - 55 m2 (2 CHAMBRES)
Module LEO
Bungalow autonome - 64 m2 < Scroller > ci-dessus
Tiny House Concepts 01
38,5 m2 au sol et 1 chambre en mezzanine
Tiny House Concepts 02
40 m2 au sol et 2 chambres à l'étage
Carport solaire
3,6 kW avec borne de recharge
Modèle M69H < Scroller > ci-dessus
Rez-de-chaussée : Hall, vestiaire, WC, Séjour/Cuisine, Buanderie
Etage : Suite parentale (Chambre, Dressing, Bains), 2 Chambres, Bains 2, WC indépendant
Etage : Suite parentale (Chambre, Dressing, Bains), 2 Chambres, Bains 2, WC indépendant
* prêt hypothécaire taux fixe au 18/10/2024










































